
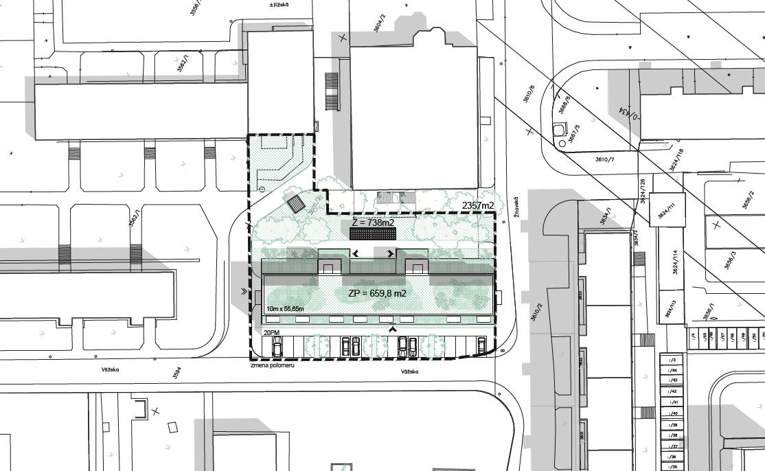
Zanedbanú plochu bývalého obchodného domu na Žitavskej ulici v bratislavskej Vrakuni majú premeniť na nájomný bytový dom. Výstavbou má vzniknúť 34 nájomných bytov. Hlavné mesto má v rámci plánovaného projektu ukončenú architektonickú štúdiu, pristúpiť by malo k spracovaniu projektovej dokumentácie a získaniu povolení.
„Pôjde o menší jednoduchý bytový dom, ktorý vhodne zapadá do prostredia typizovanej výstavby zo 70. rokov,“ konštatuje námestníčka primátora Bratislavy Lenka Antalová Plavuchová s tým, že súčasťou projektu je aj úprava chodníkov, debarierizácia priechodov pre chodcov, zveľadenie verejného priestoru i vybudovanie parkovacích miest.

Hlavné mesto má aktuálne ukončenú architektonickú štúdiu. Ďalšími krokmi bude vyhlásenie verejného obstarávania na výber projektanta, ktorý bude spracovávať projekt pre ďalšie stupne projektovej dokumentácie a potrebné povolenia. Zámerom magistrátu je projekt financovať najmä kombináciou úveru Štátneho fondu rozvoja bývania a nenávratnej dotácie Ministerstva dopravy SR.
Zástavba má pribudnúť na mestskom pozemku, ktorý je v súčasnosti značne zanedbaný. Hlavné mesto prostredníctvom bývalej Spoločnosti pre rozvoj bývania malo už v minulosti, pred približne desiatimi rokmi, zámer postaviť na danej ploche nájomné byty, z projektu napokon vzišlo. Mesto teraz nadväzuje na myšlienku z minulosti, nový projekt však má zodpovedať súčasným nárokom.

Hlavné mesto aj takto pracuje na rozširovaní svojho bytového fondu s nájomným bývaním. Vychádza z koncepcie mestskej bytovej politiky. V nej si dalo mesto ako jeden z cieľov do roku 2030 zdvojnásobiť svoj bytový fond. Jednou z možností je aj vlastná výstavba.
Bratislava má rozpracované aj ďalšie projekty mestských nájomných bytov. V priebehu prvého polroka 2023 sa má začať s výstavbou na Muchovom námestí, projektuje sa bytový súbor na Terchovskej ulici, v Janíkovom dvore a tiež v Záhorskej Bystrici.

Zdroj: TASR; Foto: Metropolitný inštitút Bratislavy










